Soho | Display

  • 4 2 2
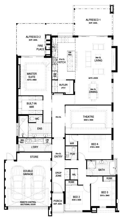
  • The Soho display home is a contemporary oasis. Located in Jandakot’s new Glen Iris estate, this home oozes style with a four-bedroom layout that is perfect for modern family life.

    The façade boasts a mix of contrasting render, feature cladding and stone, culminating in a sharp, modern look that wraps around to the rear of the home. Inside, the design continues to impress with a beautifully executed colour palette and range of textures. The contemporary feel is further celebrated with matte black fixtures, statement lighting and recessed niches.

    From the entry, a built-in drop zone awaits to hold keys, bags and other odds-and-ends. Just beyond, three bedrooms surround a large, elegant bathroom comprised of a hobless shower and free-standing bath. Across the hallway, the laundry has ample storage and bench space, and further along is a theatre with a raised platform for movie nights.

    Parents have room to retreat in a sumptuous master suite, with access to a second alfresco and outdoor fireplace. The walk-in robe offers an abundance of built-in storage, and the ensuite is likewise decadent and spacious, featuring separate sinks, a hobless shower and rain showerhead.

    At the heart of the home is a stunning and incredibly functional kitchen that showcases quality appliances, a wrap-around bench, kitchen island and butler’s pantry. The open-plan living and dining space flows seamlessly to the outdoors, where the main alfresco begs for outdoor dining and entertaining. This space invites you further along stepping stones to a fire pit, framed by picturesque garden beds, serving as a backdrop to gathering year-round.

    Luxe Specification

    • Ducted Reverse Cycle Air conditioning with controller
    • 31c ceiling to main living areas with 28c ceilings to alfresco and garage
    • Luxury Westinghouse 900mm kitchen rangehood and cooktop
    • Choice of two 600mm Westinghouse ovens or one 900mm Westinghouse oven
    • Soft close doors and drawers throughout
    • Double bowl undermount kitchen sink
    • Composite surface benchtops to kitchen, ensuite, bathroom and laundry
    • Resort style ensuite featuring hobless showers*
    • Semi-frameless shower pivot door to bathrooms
    • Choice of black, chrome or brushed nickel mixer taps in kitchen, bathroom and laundry
    • Modern 1200mm wide entry door with omni handle
    • Choice of profiled internal doors
    • Built-in robes to bedrooms* with mirrored sliding doors
    • 20 LED downlights included with smart home capabilities
    • Generous 300mm x 300mm rectified porcelain floor tiles & 300mm x 600mm rectified porcelain wall tiles to wet areas
    • 6.6kW solar with single phase inverter – battery ready
    • R4 ceiling insulation to house (and garage where required)
    • All concrete pumping and tipping fees included (subject to site conditions)

    Design Features

    4 2 2
    296m²
    15m
    • Alfresco
    • Master suite
    • Built in robes
    • Butlers pantry
    • Theatre

Location

19 Abundant Boulevard, Jandakot, WA 6164

Open Hours

Wednesday 2pm – 5pm, Saturday & Sunday 12pm – 5pm

*Map pin is an approximate guide only. Please refer to the Address for exact location.
  • Explore our Luxe specification

    We've partnered with quality suppliers to create our outstanding Luxe Specification, ticking all of the items on your list.

All details were correct at the time of publishing, however pricing is subject to change without notice. Home design and specification are subject to shire and developer approvals. Changes made to the design may affect the total cost of the home design. Specification is subject to change without notice. Perth Metro specification inclusions noted. Specification differs between regions. Images and photos are for illustration purposes only and may not depict the layout or inclusions of the home you purchase. For more information speak with a New Home Consultant and request a floorplan, specification, and any promotional/guarantee terms and conditions for this home design. *^† Terms, conditions, and eligibility criteria applies to Government Grants and is at the discretion of State and/or Federal Government. E&OE. BC7995.