Jandakot

5 2 2
306m²
15m
Authentic Avne, Jandakot, WA 6164
From $1,553,900 View Floorplan

Modern 5-Bedroom Family Haven in the Heart of Jandakot
Authentic Avne, Jandakot, WA 6164

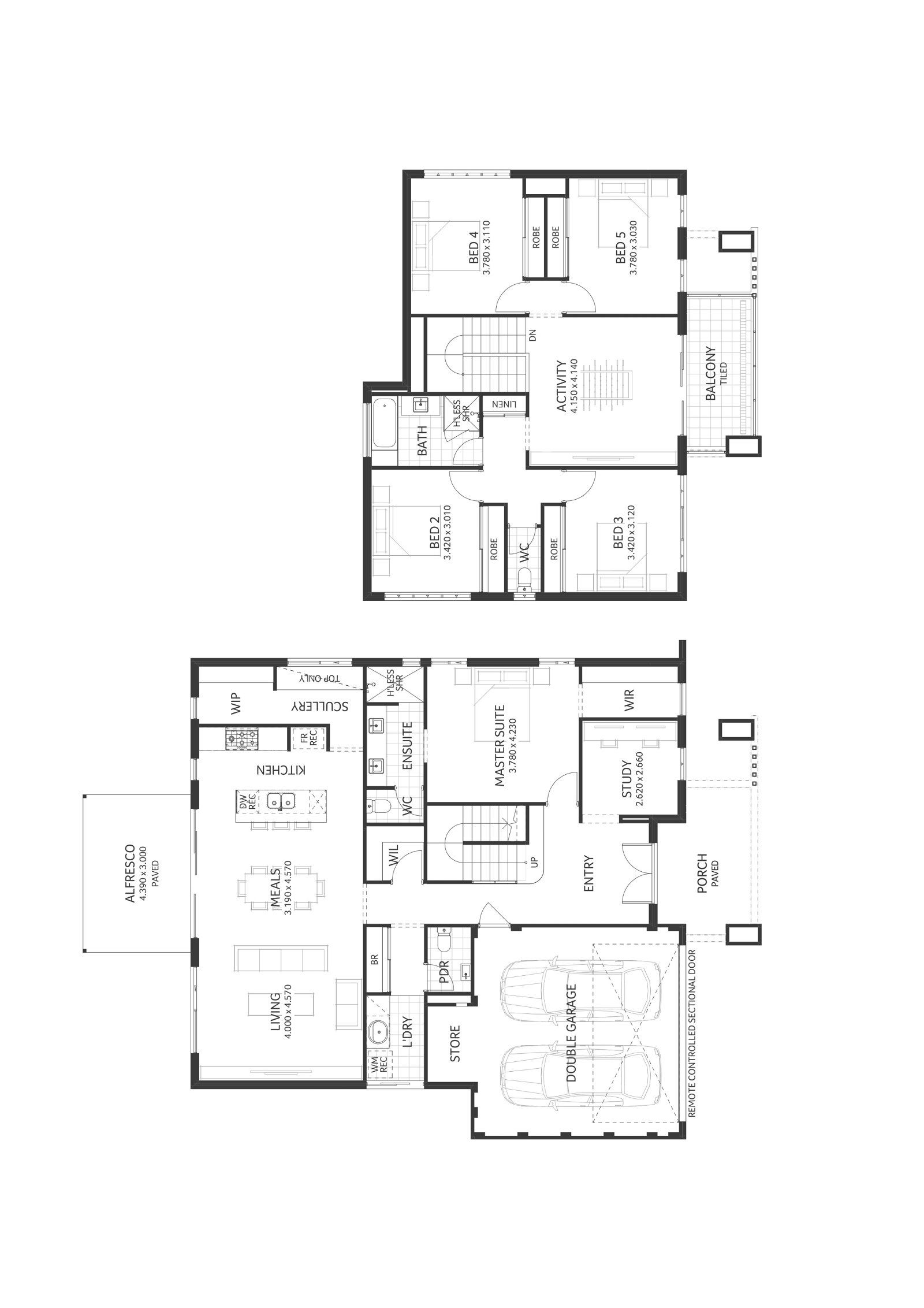
Floorplan

Inclusions

  • TURNKEY FINISHING- internal wall painting, flooring, blinds
  • 6.6kW SOLAR SYSTEM
  • DUCTED REVERSE CYCLE AIR CONDITIONING with controller
  • HIGH CEILING to ground floor with 28c ceilings to upper.
  • Luxury Westinghouse 900mm kitchen rangehood and cooktop
  • Choice of two 600mm Westinghouse ovens or one 900mm Westinghouse oven
  • Soft close doors and drawers throughout
  • Double bowl undermount kitchen sink
  • 20mm solid composite surface benchtops to kitchen, ensuite, bathroom and laundry
  • Resort style ensuite featuring hobless showers*
  • Semi-frameless shower pivot door to bathrooms
  • Choice of black, chrome or brushed nickel mixer taps in kitchen, bathroom and laundry
  • Modern 1200mm wide entry door with omni handle
  • Choice of profiled internal doors
  • Built-in robes to bedrooms* with mirrored sliding doors
  • 20 LED downlights included with smart home capabilities
  • Generous 300mm x 300mm rectified porcelain floor tiles & 300mm x 600mm rectified porcelain wall tiles to wet areas
  • Low-E glazing (as required)
  • All concrete pumping and tipping fees included (subject to site conditions)

Package Features

5 2 2
306m²
15m
  • Air conditioning
  • Activity
  • Ducted cooling
  • Ducted heating
  • Office
  • Alfresco
  • Balcony
  • Master suite
  • Reverse cycle aircon
  • Parents retreat
  • Built in robes
  • Scullery
  • Fully fenced
  • Solar panels

Contact Details

Wanda Chan

New Home Consultant

Call Enquire

Enquire Today

Simply fill out the form below and we will be in touch!

Wanda Chan

New Home Consultant

Call
Jandakot

Authentic Avne, Jandakot, WA 6164

From $1,553,900
Call Us